3 bed Terraced House
Bute Street, Treherbert, Treorchy
Asking Price
£149,000
Available
Features
Summary
T Samuel Estate Agents are delighted to present this versatile mixed-use commercial and residential property, ideally located on Bute Street, Treherbert.
This property presents a fantastic opportunity for investors or developers looking for a tenanted, multi-income premises with scope to add further value.
Description
T Samuel Estate Agents are delighted to present this versatile mixed-use commercial and residential property, ideally located on Bute Street, Treherbert.
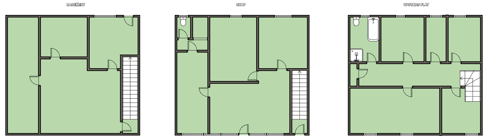
The ground floor is currently occupied by a long-standing tenant operating a popular local deli, offering an immediate rental income for investors seeking a ready-made opportunity.
Above the commercial unit is a spacious three-bedroom flat, also tenanted, providing an additional steady income stream.
The property further benefits from a basement flat, which is in need of renovation but offers excellent potential to increase rental yield or expand the property’s accommodation.
To the rear of the property, there is space for off-road parking, a valuable asset in this convenient central location and this may even present a further opportunity given its size for further development (subject to necessary planning consent).
The property offers an attractive 12% yield.
This property presents a fantastic opportunity for investors or developers looking for a multi-income premises with scope to add further value.
Shop
6.15 m x 4.30 m (20'2" x 14'1")
Shop Room 1
4.20 m x 3.50 m (13'9" x 11'6")
Shop Room 2
4.40 m x 3.00 m (14'5" x 9'10")
Shop Room 3
2.00 m x 6.70 m (6'7" x 22'0")
Shop WC and storage
1.90 m x 2.20 m (6'3" x 7'3")
Basement room 1
3.30 m x 4.90 m (10'10" x 16'1")
Basement Room 2
6.90 m x 3.00 m (22'8" x 9'10")
Basement Room 3
2.90 m x 2.90 m (9'6" x 9'6")
Basement Room 4
2.00 m x 7.80 m (6'7" x 25'7")
Utilities, Rights, Easements & Risks
Utility Supplies
| Electricity | Ask Agent |
|---|---|
| Water | Ask Agent |
| Heating | Ask Agent |
| Broadband | Ask Agent |
| Sewerage | Mains Supply |
Rights & Restrictions
| Article 4 Area | Ask Agent |
|---|---|
| Listed property | Ask Agent |
| Restrictions | Ask Agent |
| Required access | Ask Agent |
| Rights of Way | Ask Agent |
Risks
| Flooded in last 5 years | Ask Agent |
|---|---|
| Flood defenses | Ask Agent |
| Flood sources | Ask Agent |
Additional Details
Additional Features
Broadband Speeds
| Minimum | Maximum | |
|---|---|---|
| Download | 6.00 Mbps | 10000.00 Mbps |
| Upload | 0.70 Mbps | 10000.00 Mbps |
| Estimated broadband speeds provided by Ofcom for this property's postcode. | ||
Mobile Coverage
| Indoor | |||
|---|---|---|---|
| Provider | Voice | Data | 4G |
| EE | |||
| Three | |||
| O2 | |||
| Vodafone | |||
| Estimated mobile coverage provided by Ofcom for this property's postcode. | |||
| Outdoor | |||
|---|---|---|---|
| Provider | Voice | Data | 4G |
| EE | |||
| Three | |||
| O2 | |||
| Vodafone | |||
| Estimated mobile coverage provided by Ofcom for this property's postcode. | |||